TRILOCALE ALL'ASTA IN VIALE TIBALDI 15, MILANO

Milano - zona Ascanio Sforza

Rif: MC-284
Condividi Linkedin Whatsapp Stampa
A partire da € 261.800
Asta
76 Mq
3 Vani
Classe energetica F
2 Camere
1 bagno
Ascensore
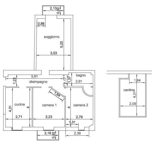
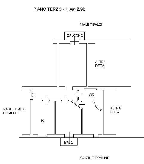
SAN GOTTARDO / BOCCONI - In vendita all'asta Appartamento trilocale della superficie commerciale di 76,43 mq posto al terzo piano in stabile d'epoca di quattro piani servito da portineria ed ascensore.
L'unità residenziale è oggetto di interventi si ristrutturazione nel 2003, ed internamente si compone di ingresso, soggiorno, cucina abitabile, due camere da letto, bagno cieco, due balconi, oltre cantina di pertinenza al piano interrato.
La maggior parte dei locali sono esposti sul cortile interno, mentre il soggiorno affaccia sul Viale Tibaldi. Il riscaldamento è del tipo autonomo, lo stato di manutenzione e conservazione molto buono.
La zona è ricca di servizi di ogni genere. Università Bocconi a soli 15 minuti a piedi (1,1 km). Si avviano i gentili interessati che il termine di saldo prezzo della specifica procedura è di 60 giorni.
DATA DI VENDITA 02/03/2026
OFFERTA MINIMA Eu. 261.800,00

Studio Aste MC – Consulenza e Assistenza Aste Immobiliari
Il mercato delle Aste Immobiliari si pone ormai da qualche anno come una vetrina alternativa al libero mercato. Sempre più persone infatti acquistano la loro prima casa all'Asta con un risparmio medio del 15% rispetto ad una classica compravendita, salvo casi eccezionali. Nella maggior parte delle vendite giudiziarie l'assenza del Notaio e dell'Agenzia Immobiliare tradizionale permettono all'acquirente aggiudicatario un risparmio netto medio tra i 20 e i 100 mila euro a seconda dell'immobile specifico. In altri casi invece, la soluzione in vendita potrebbe avere delle peculiarità tali da superare l'attuale valore di mercato in quanto “pezzo unico” nel suo genere.

I nostri servizi sono rivolti sia a coloro che desiderano supporto su una singola procedura, sia a coloro che desiderano una consulenza ed un'assistenza continuativa nel tempo.

Assistenza per Asta Singola
Per i Clienti che hanno già individuato un immobile, offriamo un supporto completo in tutte le fasi, dalla valutazione preliminare dell'immobile e della procedura, fino alla consegna delle chiavi in caso di aggiudicazione. Le attività incluse nel servizio sono:
• Analisi dell'intera documentazione della procedura;
• Reperimento informazioni mancanti;
• Trasmissione di tutti i dettagli tecnici ed economici;
• Valutazioni su possibili cambi di destinazioni d'uso e frazionamenti;
• Preventivo dettagliato di tutti i costi accessori;
• Stima dell'attuale valore di mercato;
• Stima del valore di mercato ristrutturato;
• Stima del più probabile prezzo di aggiudicazione;
• Organizzazione visita presso l'immobile;
• Predisposizione e deposito dell'offerta analogica/telematica;
• Assistenza per tutta la durata della gara;
• Assistenza al saldo prezzo ed all'immissione in possesso.
Il servizio può essere attivato mediante conferimento di incarico. È previsto un compenso una tantum applicabile esclusivamente in caso di aggiudicazione dell'immobile.

Assistenza Annuale (immobili siti nel Comune di Milano)
Per i Clienti interessati a ricevere un supporto continuativo sulle soluzioni disponibili nel Comune di Milano, proponiamo servizio di consulenza e assistenza valido 12 mesi. Oltre a ricevere tutti i servizi di assistenza sopracitati, il Cliente riceverà mensilmente un elenco aggiornato delle Aste in corso nel Comune di Milano.
Anche in questo caso il servizio può essere attivato mediante conferimento di incarico, ed è previsto un compenso una tantum applicabile esclusivamente in caso di aggiudicazione.

Per il corretto svolgimento di tutte le attività, si inviato i gentili interessati a prendere contatto con il nostro Studio con congruo anticipo. Le visite presso gli immobili vengono organizzare esclusivamente per la Clientela della Studio.

STUDIO ASTE MC ®
Viale Gian Galeazzo 6
20136 Milano (MI)
Tel. +39 02 8127 3863
richieste@studioastemc.it
www.studioastemc.it

Il presente annuncio è finalizzato alla vendita del servizio di consulenza ed assistenza per l'acquisto dell'immobile in vendita all'asta. L'esattezza di tutti i dati sarà confermata in sede di consulenza. La classe energetica potrebbe essere indicativa in quanto non reperita.

Dettaglio immobile

Contratto Vendita
Asta si
Rif MC-284
Prezzo € 261.800
Provincia Milano
Comune Milano
Zona Ascanio Sforza
Indirizzo Viale Tibaldi 15
Superficie 76 mq
Vani 3
Camere 2
Bagni 1
Classe energetica F (DL 192/2005)
EPI 175 kwh/m2 anno
Piano 3 / 4
Riscaldamento autonomo
Condizioni abitabile
Spese condominiali € 1
Anno di costruzione 1900
Ascensore si
Cantina 12 mq
Cucina abitabile
Balcone 4 mq

Consistenze

Descrizione Superficie Sup. comm.
Principali
Immobile - 3° piano 72 Mq 72 Mqc
Balcone - 3° piano 4 Mq 1 Mqc
Cantina - piano interrato 12 Mq 3 Mqc
Totale 76 Mqc

Video

Planimetrie

Richiedi maggiori informazioni

Autorizzazione al trattamento dei dati personali+
Dichiaro di aver letto l'informativa sulla privacy ed accetto le condizioni d'utilizzo del servizio.
Riempi il campo con il codice riportato nell'immagine*
Codice Captcha
Chiamaci Contattaci