N.6 APPARTAMENTI ALL'ASTA IN VIA EMILIO DE MARCHI 46, MILANO

Milano - zona Greco - Segnano

Rif: MC-281
Condividi Linkedin Whatsapp Stampa
A partire da € 91.500
Asta
59 Mq
3 Vani
Classe energetica Non indicata
1 camera
2 Bagni
Garage
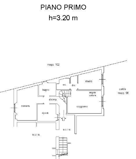
LOTTO 1 - Appartamento bilocale della superficie commerciale di 59,00 mq posto al primo piano in stabile interno cortile sprovvisto di impianto ascensore di soli tre piani fuori terra. L'unità residenziale si compone di ingresso diretto su soggiorno con angolo cottura, disimpegni, camera matrimoniale, locale studio, un bagno finestrato ed uno cieco. Completa la proprietà un box singolo di pertinenza di 15,00. L'esposizione è doppia parallela, il riscaldamento del tipo autonomo a radiatori, in buono stato di manutenzione e conservazione. Libero. Si segnala che all'interno dello stesso stabile sono posti in vendita in lotti separati altre 6 unità residenziali. Gli immobili, come riferito dalla Iorio Amministrazioni Srls che amministra lo stabile di Via Emilio De Marchi n.46 fronte strada, non hanno amministratore allo stato attuale.
OFFERTA MINIMA LOTTO 1 Eu. 96.750,00 (come da descrizione);
OFFERTA MINIMA LOTTO 2 Eu. 118.500,00 (unità al piano primo, composta da disimpegno, soggiorno, cucina, due camere, due bagni, terrazzo e box);
OFFERTA MINIMA LOTTO 3 Eu. 134.250,00 (unità al piano secondo composto da soggiorno con angolo cottura, studio, camera, due disimpegni, due bagni e box);
OFFERTA MINIMA LOTTO 4 Eu. 120.000,00 (unità al piano secondo composto da disimpegno, soggiorno con angolo cottura, wc, studio, ripostiglio, camera, bagno e box);
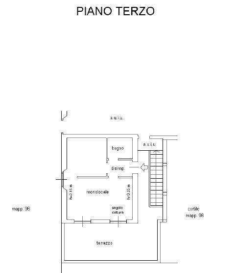
OFFERTA MINIMA LOTTO 5 Eu. 105.750,00 (unità al piano terzo composto da disimpegno, monolocale con angolo cottura, bagno, terrazzo e box);
OFFERTA MINIMA LOTTO 6 Eu. 91.500,00 (unità posto al piano terzo composto da disimpegno, monolocale, angolo cottura, bagno e box).
DATA DI VENDITA 05/02/2026 a partire dalle ore 09,30

Studio Aste MC – Consulenza e Assistenza Aste Immobiliari
Il mercato delle Aste Immobiliari si pone ormai da qualche anno come una vetrina alternativa al libero mercato. Sempre più persone infatti acquistano la loro prima casa all'Asta con un risparmio medio del 15% rispetto ad una classica compravendita, salvo casi eccezionali. Nella maggior parte delle vendite giudiziarie l'assenza del Notaio e dell'Agenzia Immobiliare tradizionale permettono all'acquirente aggiudicatario un risparmio netto medio tra i 20 e i 100 mila euro a seconda dell'immobile specifico. In altri casi invece, la soluzione in vendita potrebbe avere delle peculiarità tali da superare l'attuale valore di mercato in quanto “pezzo unico” nel suo genere.

I nostri servizi sono rivolti sia a coloro che desiderano supporto su una singola procedura, sia a coloro che desiderano una consulenza ed un'assistenza continuativa nel tempo.

Assistenza per Asta Singola
Per i Clienti che hanno già individuato un immobile, offriamo un supporto completo in tutte le fasi, dalla valutazione preliminare dell'immobile e della procedura, fino alla consegna delle chiavi in caso di aggiudicazione. Le attività incluse nel servizio sono:
• Analisi dell'intera documentazione della procedura;
• Reperimento informazioni mancanti;
• Trasmissione di tutti i dettagli tecnici ed economici;
• Valutazioni su possibili cambi di destinazioni d'uso e frazionamenti;
• Preventivo dettagliato di tutti i costi accessori;
• Stima dell'attuale valore di mercato;
• Stima del valore di mercato ristrutturato;
• Stima del più probabile prezzo di aggiudicazione;
• Organizzazione visita presso l'immobile;
• Predisposizione e deposito dell'offerta analogica/telematica;
• Assistenza per tutta la durata della gara;
• Assistenza al saldo prezzo ed all'immissione in possesso.
Il servizio può essere attivato mediante conferimento di incarico. È previsto un compenso una tantum applicabile esclusivamente in caso di aggiudicazione dell'immobile.

Assistenza Annuale (immobili siti nel Comune di Milano)
Per i Clienti interessati a ricevere un supporto continuativo sulle soluzioni disponibili nel Comune di Milano, proponiamo servizio di consulenza e assistenza valido 12 mesi. Oltre a ricevere tutti i servizi di assistenza sopracitati, il Cliente riceverà mensilmente un elenco aggiornato delle Aste in corso nel Comune di Milano.
Anche in questo caso il servizio può essere attivato mediante conferimento di incarico, ed è previsto un compenso una tantum applicabile esclusivamente in caso di aggiudicazione.

Per il corretto svolgimento di tutte le attività, si inviato i gentili interessati a prendere contatto con il nostro Studio con congruo anticipo. Le visite presso gli immobili vengono organizzare esclusivamente per la Clientela della Studio.

STUDIO ASTE MC ®
Viale Gian Galeazzo 6
20136 Milano (MI)
Tel. +39 02 8127 3863
richieste@studioastemc.it
www.studioastemc.it

Il presente annuncio è finalizzato alla vendita del servizio di consulenza ed assistenza per l'acquisto dell'immobile in vendita all'asta. L'esattezza di tutti i dati sarà confermata in sede di consulenza. La classe energetica potrebbe essere indicativa in quanto non reperita.

Dettaglio immobile

Contratto Vendita
Asta si
Rif MC-281
Prezzo € 91.500
Provincia Milano
Comune Milano
Zona Greco - Segnano
Indirizzo Via Emilio de Marchi 46
Superficie 59 mq
Vani 3
Camere 1
Bagni 2
Classe energetica Non indicata
Piano 1 / 3
Riscaldamento autonomo
Condizioni abitabile
Spese condominiali € 1
Anno di costruzione 2011
Arredato si
Ascensore no
Garage 15 mq
Cucina a vista

Consistenze

Descrizione Superficie Sup. comm.
Principali
Immobile - 1° piano 59 Mq 59 Mqc
Accessorie
Box/Garage - piano terra 15 Mq 15 Mqc
Totale 74 Mqc

Video

Richiedi maggiori informazioni

Autorizzazione al trattamento dei dati personali+
Dichiaro di aver letto l'informativa sulla privacy ed accetto le condizioni d'utilizzo del servizio.
Riempi il campo con il codice riportato nell'immagine*
Codice Captcha
Chiamaci Contattaci