QUADRILOCALE ALL'ASTA IN VIA UGO LA MALFA 11, MILANO

Milano - zona Quartiere Adriano

Rif: MC-271
Condividi Linkedin Whatsapp Stampa
A partire da € 313.920
Asta
176 Mq
4 Vani
Classe energetica G
3 Camere
2 Bagni
Ascensore
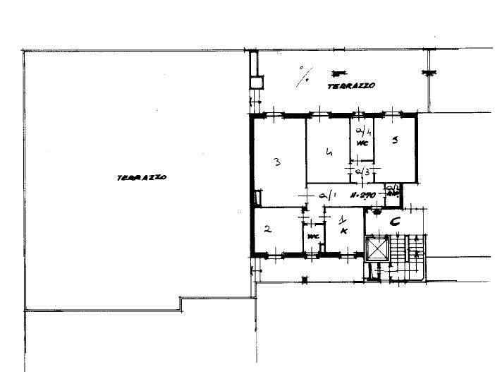
ADRIANO: Appartamento quadrilocale della superficie commerciale di 176,00 mq posto al primo piano in stabile servito da ascensore di sei piani costruito nel 1987.
L'unità residenziale si compone di ingresso/disimpegno, soggiorno doppio, cucina abitabile, tre camere, due bagni, ripostiglio, ampio balcone con affaccio interno, un terrazzo loggiato ed un altro ampio terrazzo a forma rettangolare.
Completa la proprietà una cantina di pertinenza al piano interrato. L'esposizione è tripla, il riscaldamento del tipo centralizzato, in buono stato di manutenzione e conservazione.
DATA DI VENDITA 03/02/2026
OFFERTA MINIMA Eu. 313.920,00

Studio Aste MC – Consulenza e Assistenza Aste Immobiliari
I nostri servizi sono rivolti sia a coloro che desiderano supporto per singole procedure, sia a Clienti interessati a partecipare a più aste nel corso dell'anno.

Assistenza per Asta Singola
Per i Clienti che hanno già individuato un immobile, offriamo un supporto completo in tutte le fasi, dalla valutazione preliminare della documentazione fino alla consegna chiavi.
Le attività incluse sono:
• Analisi dell'intera documentazione della procedura;
• Reperimento informazioni mancanti;
• Trasmissione di tutti i dettagli tecnici ed economici;
• Valutazioni su possibili cambi di destinazioni d'uso e frazionamenti;
• Preventivo di tutti i costi accessori;
• Stima dell'attuale valore di mercato;
• Stima del valore di mercato ristrutturato;
• Stima del più probabile prezzo di aggiudicazione;
• Organizzazione visita presso l'immobile;
• Predisposizione e deposito dell'offerta analogica/telematica;
• Assistenza per tutta la durata della gara;
• Assistenza al saldo prezzo ed all'immissione in possesso.
Il servizio può essere attivato mediante conferimento di incarico. È previsto un compenso una tantum applicabile esclusivamente in caso di aggiudicazione dell'immobile.

Assistenza Annuale Milano
Per i Clienti interessati a ricevere aggiornamenti costanti sulle opportunità immobiliari all'asta nel Comune di Milano, proponiamo servizio di consulenza e assistenza valido 12 mesi.
Il Cliente riceverà mensilmente via email un elenco aggiornato delle aste in corso nel Comune di Milano. Sugli immobili di interesse verranno svolte le medesime attività descritte nel servizio di assistenza per asta singola.
Anche in questo caso il compenso sarà una tantum e si applicherà esclusivamente in caso di aggiudicazione.

Il presente annuncio è finalizzato alla vendita del servizio di consulenza ed assistenza per l'acquisto dell'immobile in vendita all'asta. L'esattezza di tutti i dati sarà confermata in sede di consulenza. La classe energetica potrebbe essere indicativa in quanto non reperita.

STUDIO ASTE MC ®
Viale Gian Galeazzo 6
20136 Milano (MI)
Tel. +39 02 8127 3863
richieste@studioastemc.it
www.studioastemc.it

Dettaglio immobile

Contratto Vendita
Asta si
Rif MC-271
Prezzo € 313.920
Provincia Milano
Comune Milano
Zona Quartiere Adriano
Indirizzo Via Ugo la Malfa 11
Superficie 176 mq
Vani 4
Camere 3
Bagni 2
Classe energetica G (DL 192/2005)
EPI 175 kwh/m2 anno
Piano 1 / 6
Riscaldamento centralizzato
Condizioni abitabile
Spese condominiali € 1
Anno di costruzione 1985
Ascensore si
Cantina 8 mq
Cucina abitabile
Balcone 25 mq
Terrazza si

Consistenze

Descrizione Superficie Sup. comm.
Principali
Immobile - 1° piano 126 Mq 126 Mqc
Balcone - 1° piano 25 Mq 8 Mqc
Terrazza - 1° piano 406 Mq 41 Mqc
Cantina - piano interrato 8 Mq 2 Mqc
Totale 177 Mqc

Video

Planimetrie

Richiedi maggiori informazioni

Autorizzazione al trattamento dei dati personali+
Dichiaro di aver letto l'informativa sulla privacy ed accetto le condizioni d'utilizzo del servizio.
Riempi il campo con il codice riportato nell'immagine*
Codice Captcha
Chiamaci Contattaci