NEGOZIO ALL'ASTA IN VIA ARONA 18, MILANO

Milano - zona Sempione

Rif: MC-262
Condividi Linkedin Whatsapp Stampa
A partire da € 416.775
Asta
241 Mq
6 Vani
Classe energetica G
2 Bagni
Ascensore
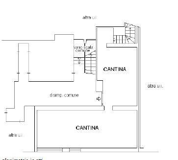
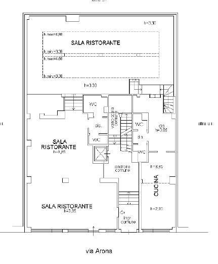
DOMODOSSOLA: Negozio avente 4 vetrine su strada, adibito a ristorante, della superficie commerciale di 150 mq oltre locale retro di 107,00 mq e locali cantinati di 75,00 mq (superficie lorda totale 332,00 mq, superficie commerciale totale 241,00 mq). L'esposizione è singola su strada, il riscaldamento è del tipo centralizzato a pavimento, lo stato di manutenzione e conservazione ottimo.
Si segnala che l'immobile viene posto in vendita come libero nonostante sia allo stato occupato con contatto di locazione che andrà a scadere in data 06.02.2027 (canone di locazione pattuito in Eu. 27.000,00 annui. Attualmente viene pagato un canone mensile – comprensivo di aggiornamento ISTAT pari ad Eu. 2.460,42). Tale contratto di locazione, invero, è stato ritenuto dall'ill.mo signor Giudice dell'Esecuzione non opponibile per viltà del canone con conseguente emissione dell'ordine di liberazione. Si avvertono gli eventuali interessati della pendenza dell'opposizione ex art. 617 c.p.c. avverso l'ordine di liberazione e che laddove l'opposizione dovesse essere accolta il contratto di locazione dovrebbe ritenersi opponibile all'aggiudicatario, nonostante il bene sia stato posto in vendita come libero.
DATA DI VENDITA 27/01/2026
OFFERTA MINIMA Eu. 416.775,00

Studio Aste MC – Consulenza e Assistenza Aste Immobiliari
I nostri servizi sono rivolti sia a coloro che desiderano supporto per singole procedure, sia a Clienti interessati a partecipare a più aste nel corso dell'anno.

Assistenza per Asta Singola
Per i Clienti che hanno già individuato un immobile, offriamo un supporto completo in tutte le fasi, dalla valutazione preliminare della documentazione fino alla consegna chiavi.
Le attività incluse sono:
• Analisi dell'intera documentazione della procedura;
• Reperimento informazioni mancanti;
• Trasmissione di tutti i dettagli tecnici ed economici;
• Valutazioni su possibili cambi di destinazioni d'uso e frazionamenti;
• Preventivo di tutti i costi accessori;
• Stima dell'attuale valore di mercato;
• Stima del valore di mercato ristrutturato;
• Stima del più probabile prezzo di aggiudicazione;
• Organizzazione visita presso l'immobile;
• Predisposizione e deposito dell'offerta analogica/telematica;
• Assistenza per tutta la durata della gara;
• Assistenza al saldo prezzo ed all'immissione in possesso.
Il servizio può essere attivato mediante conferimento di incarico. È previsto un compenso una tantum applicabile esclusivamente in caso di aggiudicazione dell'immobile.

Assistenza Annuale Milano
Per i Clienti interessati a ricevere aggiornamenti costanti sulle opportunità immobiliari all'asta nel Comune di Milano, proponiamo servizio di consulenza e assistenza valido 12 mesi.
Il Cliente riceverà mensilmente via email un elenco aggiornato delle aste in corso nel Comune di Milano. Sugli immobili di interesse verranno svolte le medesime attività descritte nel servizio di assistenza per asta singola.
Anche in questo caso il compenso sarà una tantum e si applicherà esclusivamente in caso di aggiudicazione.

Il presente annuncio è finalizzato alla vendita del servizio di consulenza ed assistenza per l'acquisto dell'immobile in vendita all'asta. L'esattezza di tutti i dati sarà confermata in sede di consulenza. La classe energetica potrebbe essere indicativa in quanto non reperita.

STUDIO ASTE MC ®
Viale Gian Galeazzo 6
20136 Milano (MI)
Tel. +39 02 8127 3863
richieste@studioastemc.it
www.studioastemc.it

Dettaglio immobile

Contratto Vendita
Asta si
Rif MC-262
Prezzo € 416.775
Provincia Milano
Comune Milano
Zona Sempione
Indirizzo Via Arona 18
Superficie 241 mq
Vani 6
Bagni 2
Classe energetica G (DL 192/2005)
EPI 175 kwh/m2 anno
Riscaldamento centralizzato
Condizioni abitabile
Spese condominiali € 1
Anno di costruzione 1960
Ascensore si
Cantina si

Consistenze

Descrizione Superficie Sup. comm.
Principali
Negozio - piano terra 150 Mq 150 Mqc
Magazzino - piano terra 107 Mq 54 Mqc
Magazzino - piano interrato 75 Mq 38 Mqc
Totale 242 Mqc

Video

Planimetrie

Richiedi maggiori informazioni

Autorizzazione al trattamento dei dati personali+
Dichiaro di aver letto l'informativa sulla privacy ed accetto le condizioni d'utilizzo del servizio.
Riempi il campo con il codice riportato nell'immagine*
Codice Captcha
Chiamaci Contattaci