APPARTAMENTO ALL'ASTA IN VIA GIOSUE' CARDUCCI 31, MILANO

Milano - zona Sant'Ambrogio

Rif: MC-208
Condividi Linkedin Whatsapp Stampa
A partire da € 2.025.000
Asta
252 Mq
6 Vani
Classe energetica Non indicata
2 Camere
3 Bagni
Ascensore
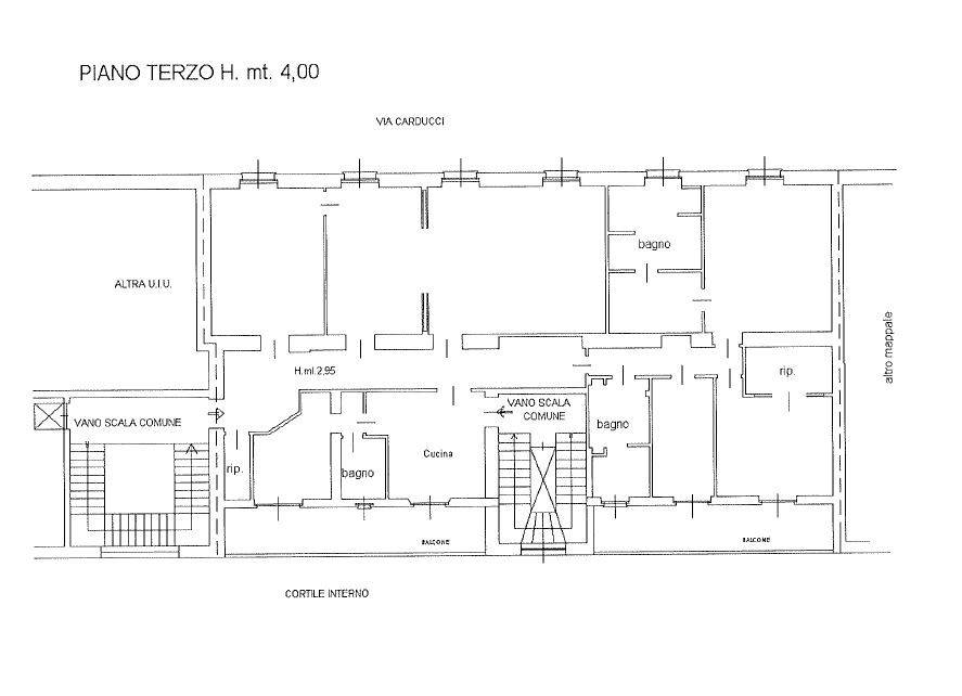
SANT'AMBROGIO - Appartamento di Lusso all'Asta posto al terzo piano (quarto fuori terra) dello stabile al civico 31 in Via Giosuè Carducci. L'edificio, costruito all'inizio del secolo scorso, si sviluppa su cinque piani fuori terra e tre piani interrati. Le parti comuni sono ampie e prestigiose, androne e scala infatti risultano finemente decorati ed in ottimo stato manutentivo. Anche le facciate esterne sono decorate con fregi e cornici di stile prettamente classico. Presenti ascensore e servizio di portineria.
Internamente l'unità residenziale si compone di ingresso, un locale adibito a studio, ripostiglio, ampia zona living con sala da pranzo separata da porte-vetrate scorrevoli, zona di servizio composta da cucina abitabile, bagno finestrato e locale di servizio adibito a lavanderia, corridoio, due ampie camere matrimoniali con relative cabine armadio e due bagni finestrati. Presenti altresì due ampie balconate con affaccio su cortile interno. L'appartamento presenta due porte di accesso da due vani scali condominiali.
Completano la proprietà due vani cantina al piano seminterrato, e tre posti auto meccanizzati ai piani S1 e S2. L'appartamento si presenta in condizioni generali ottime, ristrutturato da pochi anni e con finiture di pregio. Altezza dei locali interni pari a 4,00 mt.
DATA DI VENDITA 16/12/2025
OFFERTA MINIMA Eu. 2.025.000,00

Studio Aste MC – Consulenza e Assistenza Aste Immobiliari

Il mercato delle Aste Immobiliari si pone ormai da qualche anno come una vetrina alternativa al libero mercato. Sempre più persone infatti acquistano la loro prima casa all'Asta con un risparmio medio del 15 % rispetto ad una classica compravendita, salvo casi eccezionali.
Nella maggior parte delle vendite giudiziarie l'assenza del notaio e dell'agenzia immobiliare tradizionale permettono all'acquirente un risparmio netto tra i 20 e i 100 mila euro a seconda dell'immobile specifico. In altri casi invece, la soluzione in vendita potrebbe avere delle peculiarità tali da superare l'attuale valore di mercato in quanto “pezzo unico” nel suo genere.

I nostri servizi sono rivolti sia a coloro che desiderano supporto su una singola procedura, sia a coloro che desiderano una consulenza ed un'assistenza continuativa nel tempo.

Assistenza per Asta Singola
Per i Clienti che hanno già individuato un immobile, offriamo un supporto completo in tutte le fasi, dalla valutazione preliminare dell'immobile e della procedura, fino alla consegna delle chiavi in caso di aggiudicazione. Le attività incluse nel servizio sono:
• Analisi dell'intera documentazione della procedura;
• Reperimento informazioni mancanti;
• Trasmissione di tutti i dettagli tecnici ed economici;
• Valutazioni su possibili cambi di destinazioni d'uso e frazionamenti;
• Preventivo dettagliato di tutti i costi accessori;
• Stima dell'attuale valore di mercato;
• Stima del valore di mercato ristrutturato;
• Stima del più probabile prezzo di aggiudicazione;
• Organizzazione visita presso l'immobile;
• Predisposizione e deposito dell'offerta analogica/telematica;
• Assistenza per tutta la durata della gara;
• Assistenza al saldo prezzo ed all'immissione in possesso.
Il servizio può essere attivato mediante conferimento di incarico. È previsto un compenso una tantum applicabile esclusivamente in caso di aggiudicazione dell'immobile.

Assistenza Annuale (immobili siti nel Comune di Milano)
Per i Clienti interessati a ricevere un supporto continuativo sulle soluzioni disponibili nel Comune di Milano, proponiamo servizio di consulenza e assistenza valido 12 mesi.
Oltre a ricevere tutti i servizi di assistenza sopracitati sugli immobili potenzialmente aggiudicabili, il Cliente riceverà mensilmente un elenco aggiornato delle Aste in corso nel Comune di Milano.
Anche in questo caso il servizio può essere attivato mediante conferimento di incarico, ed è previsto un compenso una tantum applicabile esclusivamente in caso di aggiudicazione.

Per il corretto svolgimento di tutte le attività, si inviato i gentili interessati a prendere contatto con il nostro Studio con congruo anticipo.

STUDIO ASTE MC ®
Viale Gian Galeazzo 6
20136 Milano (MI)
Tel. +39 02 8127 3863
richieste@studioastemc.it
www.studioastemc.it

Il presente annuncio è finalizzato alla vendita del servizio di consulenza ed assistenza per l'acquisto dell'immobile in vendita all'asta. L'esattezza di tutti i dati sarà confermata in sede di consulenza. La classe energetica potrebbe essere indicativa in quanto non reperita.

Dettaglio immobile

Contratto Vendita
Asta si
Rif MC-208
Prezzo € 2.025.000
Provincia Milano
Comune Milano
Zona Sant'Ambrogio
Indirizzo Via Giosuè Carducci 31
Superficie 252 mq
Vani 6
Camere 2
Bagni 3
Classe energetica Non indicata
Piano 3 / 4
Riscaldamento autonomo
Condizioni ottime condizioni
Spese condominiali € 1
Anno di costruzione 1920
Ascensore si
Cantina 45 mq
Parcheggio 42 mq
Cucina abitabile
Balcone 27 mq

Consistenze

Descrizione Superficie Sup. comm.
Principali
Immobile - 3° piano 233 Mq 233 Mqc
Balcone - 3° piano 13 Mq 4 Mqc
Balcone - 3° piano 14 Mq 4 Mqc
Cantina - seminterrato 32 Mq 8 Mqc
Cantina - seminterrato 13 Mq 3 Mqc
Accessorie
Posto auto 14 Mq 14 Mqc
Posto auto 14 Mq 14 Mqc
Posto auto 14 Mq 14 Mqc
Totale 294 Mqc

Video

Planimetrie

Richiedi maggiori informazioni

Autorizzazione al trattamento dei dati personali+
Dichiaro di aver letto l'informativa sulla privacy ed accetto le condizioni d'utilizzo del servizio.
Riempi il campo con il codice riportato nell'immagine*
Codice Captcha
Chiamaci Contattaci