AMPIO UFFICIO ALL'ASTA IN P.ZZA DELLA REPUBBLICA 32, MILANO

Milano - zona Repubblica

Rif: MC-200
Condividi Linkedin Whatsapp Stampa
A partire da € 3.000.000
Asta
634 Mq
6 Vani
Classe energetica E
4 Bagni
Ascensore
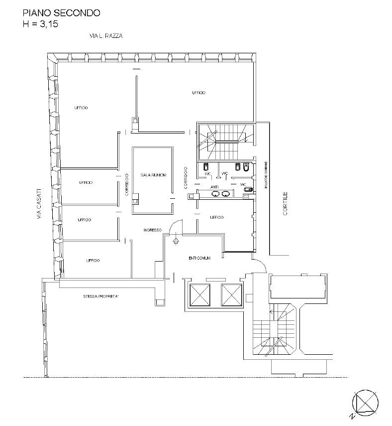
REPUBBLICA / STAZIONE CENTRALE - All'interno del grattacielo Torre Breda, all'asta l'intero secondo piano a destinazione d'uso uffici.
Trattasi di due unità immobiliari ad uso ufficio della superficie totale di 634,00 mq. Nel loro complesso le unità sono composte da 18 locali ad uso ufficio e 6 bagni.
L'esposizione è tripla esterna su Viale Tunisia, Via Vittor Pisani e Via Luigi Razza. Assenti affacci esterni e pertinenze.
L'immobile è venduto nello stato di fatto e di diritto in cui si trova, ingombro di camere blindate, casseforti, computers, stampanti e macchine da ufficio non più funzionanti, frigorifero, mobili d'ufficio, arredi in parte fissi, carta, cancelleria ecc., i cui costi per l'asporto e lo smaltimento sono già stati considerati e compresi nella stima complessiva dell'immobile.
Saldo prezzo: entro 60 (sessanta) giorni dall'aggiudicazione.
Stato di possesso: libero.
DATA DI VENDITA 30/09/2025
OFFERTA MINIMA Eu. 3.000.000,00
Per una valutazione preliminare sulla fattibilità dell'acquisto si prega di chiamare in Studio nei giorni feriali dalle ore 10:00 alle ore 18:00.

Studio Aste MC è una realtà consolidata, attiva nel settore delle Aste Immobiliari da oltre dieci anni.
Grazie alla digitalizzazione delle procedure siamo in grado di offrire assistenza anche a distanza, garantendo supporto a clienti su tutto il territorio nazionale.
I nostri servizi sono rivolti sia a coloro che desiderano supporto per singole procedure, sia a clienti interessati a partecipare a più aste nel corso dell'anno.

Assistenza per Asta Singola
Per i clienti che hanno già individuato un immobile, offriamo un supporto completo in tutte le fasi, dalla valutazione preliminare della documentazione fino alla consegna chiavi.
Le attività incluse sono:
• Analisi dell'intera documentazione della procedura;
• Reperimento informazioni mancanti;
• Indagine sull'attuale stato dell'immobile;
• Trasmissione di tutti i dettagli tecnici ed economici;
• Preventivo dettagliato di tutti i costi accessori;
• Stima dell'attuale valore di mercato;
• Stima del valore di mercato ristrutturato;
• Stima del più probabile prezzo di aggiudicazione;
• Organizzazione visita presso l'immobile;
• Predisposizione e deposito dell'offerta analogica/telematica;
• Assistenza per tutta la durata della gara;
• Assistenza al saldo prezzo ed all'immissione in possesso.
Il servizio può essere attivato mediante conferimento di incarico. È previsto un compenso una tantum, applicabile esclusivamente in caso di aggiudicazione dell'immobile.

Assistenza Annuale Milano
Per i clienti interessati a ricevere aggiornamenti costanti sulle opportunità immobiliari all'asta nel Comune di Milano, proponiamo un servizio di consulenza e assistenza valido 12 mesi.
Il cliente riceverà mensilmente, via email, un elenco aggiornato delle aste in corso nel Comune di Milano, ordinato per data di vendita, con link alla mappa, all'annuncio, alla descrizione completa ed al materiale fotografico e planimetrico.
Sugli immobili di interesse verranno svolte le medesime attività descritte nel servizio di assistenza per asta singola.
Anche in questo caso il compenso è una tantum e si applicherà esclusivamente in caso di aggiudicazione.

Prenotazione Visita
Se desidera visitare l'immobile senza usufruire di altri servizi, Le chiediamo di rispondere a questo annuncio richiedendo esplicitamente il “Sevizio Prenotazione Visita”.
Seguirà altra email con maggiori informazioni per l'attivazione del servizio.

STUDIO ASTE MC ®
Viale Gian Galeazzo 6
20136 Milano (MI)
Tel. +39 02 8127 3863
richieste@studioastemc.it
www.studioastemc.it

Il presente annuncio è finalizzato alla vendita del servizio di consulenza ed assistenza per l'acquisto dell'immobile in vendita all'asta. L'esattezza di tutti i dati sarà confermata in sede di consulenza. La classe energetica potrebbe essere indicativa in quanto non reperita.

Dettaglio immobile

Contratto Vendita
Asta si
Rif MC-200
Prezzo € 3.000.000
Provincia Milano
Comune Milano
Zona Repubblica
Indirizzo Piazza della Repubblica 32
Superficie 634 mq
Vani 6
Bagni 4
Classe energetica E (DL 192/2005)
EPI 175 kwh/m2 anno
Piano 2 / 27
Riscaldamento autonomo
Condizioni abitabile
Spese condominiali € 1
Anno di costruzione 1980
Arredato si
Ascensore si

Consistenze

Descrizione Superficie Sup. comm.
Principali
Ufficio - 2° piano 634 Mq 634 Mqc
Totale 634 Mqc

Video

Planimetrie

Richiedi maggiori informazioni

Autorizzazione al trattamento dei dati personali+
Dichiaro di aver letto l'informativa sulla privacy ed accetto le condizioni d'utilizzo del servizio.
Riempi il campo con il codice riportato nell'immagine*
Codice Captcha
Chiamaci Contattaci