APPARTAMENTO ALL'ASTA IN VIALE LOMBARDIA 27, MILANO

Milano - zona Città Studi

Rif: MC-194
Condividi Linkedin Whatsapp Stampa
A partire da € 390.000
Asta
97 Mq
2 Vani
Classe energetica E
1 camera
1 bagno
Ascensore
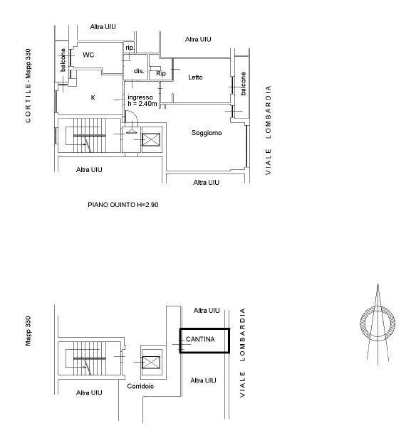
CITTA' STUDI - Appartamento della superficie commerciale di 96,62 mq posto al quinto piano in stabile di nove piani fuori terra servito da ascensore e costruito a metà degli anni '60 del secolo scorso.
L'unità residenziale si compone di ingresso, ampio soggiorno, cucina abitabile, disimpegno notte, una camera matrimoniale con cabina armadio, un ampio bagno finestrato, due balconi, ripostiglio, oltre cantina di pertinenza al piano interrato.
L'esposizione è doppia parallela sulla via principale e sul cortile interno, il riscaldamento è del tipo centralizzato a radiatori, lo stato di manutenzione e conservazione ottimo.
Si segnala che l'unità immobiliare è locata con regolare contratto fino al 30/01/2028: canone annuo Eu. 11.520,00 oltre Eu. 2.280,00 di spese condominiali e riscaldamento, versate in rate mensili di Eu. 1.150,00.
DATA DI VENDITA 27/11/2025
OFFERTA MINIMA Eu. 390.000,00

Studio Aste MC è una realtà consolidata, attiva nel settore delle Aste Immobiliari da oltre dieci anni. Grazie alla digitalizzazione delle procedure siamo in grado di offrire assistenza anche a distanza, garantendo supporto a clienti su tutto il territorio nazionale.
I nostri servizi sono rivolti sia a coloro che desiderano supporto per singole procedure, sia a clienti interessati a partecipare a più aste nel corso dell'anno.
Collaboriamo con studi legali, notarili e professionali di diversi settori, al fine di fornire un'assistenza completa in tutte le fasi del processo, dall'acquisto alla progettazione e ristrutturazione, fino alla rivendita degli immobili.
Il nostro approccio si distingue per l'attenzione non esclusivamente al prezzo di offerta, ma anche per un'analisi approfondita dell'intera procedura, basata su un modello proprietario. Valutiamo il valore attuale e prospettico dell'immobile, considerando le dinamiche di mercato locali e le caratteristiche specifiche della zona di interesse. A queste analisi quantitative si affianca l'esperienza maturata nel settore, che ci consente di definire con il cliente la strategia operativa più efficace in sede d'asta.

Assistenza per Asta Singola
Per i clienti che hanno già individuato un immobile, offriamo un supporto completo in tutte le fasi, dalla valutazione preliminare della documentazione fino alla consegna chiavi. Le attività incluse sono:
• Analisi dell'intera documentazione della procedura;
• Reperimento informazioni mancanti;
• Indagine sull'attuale stato dell'immobile;
• Trasmissione di tutti i dettagli tecnici ed economici;
• Preventivo dettagliato di tutti i costi accessori;
• Stima dell'attuale valore di mercato;
• Stima del valore di mercato ristrutturato;
• Stima del più probabile prezzo di aggiudicazione;
• Organizzazione visita presso l'immobile;
• Predisposizione e deposito dell'offerta analogica/telematica;
• Assistenza per tutta la durata della gara;
• Assistenza al saldo prezzo ed all'immissione in possesso.
Il servizio può essere attivato mediante conferimento di incarico. È previsto un compenso una tantum, applicabile esclusivamente in caso di aggiudicazione dell'immobile.
Per ricevere un preventivo dettagliato ti invitiamo a rispondere a questo annuncio richiedendo l'incarico per Asta Singola.

Assistenza Annuale Milano
Per i clienti interessati a ricevere aggiornamenti costanti sulle opportunità immobiliari all'asta nel Comune di Milano, proponiamo un servizio di consulenza e assistenza valido 12 mesi.
Il cliente riceverà mensilmente, via email, un elenco aggiornato delle aste in corso nel Comune di Milano, ordinato per data di vendita, con link alla mappa, all'annuncio, alla descrizione completa ed al materiale fotografico e planimetrico.
Sugli immobili di interesse verranno svolte le medesime attività descritte nel servizio di assistenza per asta singola.
Anche in questo caso il compenso è una tantum e si applicherà esclusivamente in caso di aggiudicazione.

Prenotazione Visita
Se desideri visitare un immobile senza usufruire di altri servizi, ti chiediamo di rispondere a questo annuncio richiedendo esplicitamente il “Sevizio Prenotazione Visita”. Seguirà altra email con maggiori informazioni per l'attivazione del servizio.

STUDIO ASTE MC ®
Viale Gian Galeazzo 6
20136 Milano (MI)
Tel. +39 02 8127 3863
richieste@studioastemc.it
www.studioastemc.it

Il presente annuncio è finalizzato alla vendita del servizio di consulenza ed assistenza per l'acquisto dell'immobile in vendita all'asta. L'esattezza di tutti i dati sarà confermata in sede di consulenza. La classe energetica potrebbe essere indicativa in quanto non reperita.

Dettaglio immobile

Contratto Vendita
Asta si
Rif MC-194
Prezzo € 390.000
Provincia Milano
Comune Milano
Zona Città Studi
Indirizzo Viale Lombardia 27
Superficie 97 mq
Vani 2
Camere 1
Bagni 1
Classe energetica E (DL 192/2005)
EPI 175 kwh/m2 anno
Piano 5 / 8
Riscaldamento centralizzato
Condizioni abitabile
Spese condominiali € 1
Anno di costruzione 1964
Ascensore si
Cantina 6 mq
Cucina abitabile
Balcone 8 mq

Consistenze

Descrizione Superficie Sup. comm.
Principali
Immobile - 5° piano 93 Mq 93 Mqc
Balcone - 5° piano 5 Mq 1 Mqc
Balcone - 5° piano 3 Mq 1 Mqc
Cantina - piano interrato 6 Mq 1 Mqc
Totale 96 Mqc

Video

Planimetrie

Richiedi maggiori informazioni

Autorizzazione al trattamento dei dati personali+
Dichiaro di aver letto l'informativa sulla privacy ed accetto le condizioni d'utilizzo del servizio.
Riempi il campo con il codice riportato nell'immagine*
Codice Captcha
Chiamaci Contattaci